您好,欢迎来到重庆维斯顿实业有限公司官方网站!
023-47607777
01


联系我们

电话:023-4760777

传真:​ 023-47607880

地址:重庆市江津区珞璜工业园B区

邮箱:vip@wsdwsd.cn

当前位置:首页 > 产品说明 >

PVC-U排水管件特点及施工安装

作者:张武松   发布时间:2017-08-18 16:52   

PVC-U排水管件特点及施工安装
一、产品特点

1、耐腐蚀
不受腐蚀性土壤和各种生活用水的影响,可耐广泛的化学物品包括一般性酸碱
的腐蚀;不生锈、不结垢,因而其内部不会产生侵蚀及收缩变化,不易堵塞,
保证建筑物的美观。
2、抗冲击
因采用独特辅助挤配合,能受压、抗冲击、适应不同的温差使用场合。
3、质轻
重量为铸铁管的五分之一,易于运输和安装,用粘接剂粘接,简单快捷。
4、成本低、寿命长
比铸铁管造价低廉,在正常使用条件下,寿命可达50年以上,无须定期保养及
维护。
5、抗老化
采用特有的配方工艺,无老化变色之忧。
6、防鼠虫
使用独特辅助剂,使产品不会发出虫鼠喜欢之气味,避免白蚁、虫鼠啃咬破
坏。
7、无毒
不含有毒的铅盐及其它有毒化学物质,对人体无害。
8、品种齐全
管材、管件款式繁多、齐全,可配合各种设计及安装要求。
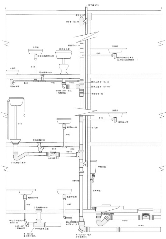
二、管材施工安装
1、特殊单立管排水系统
特殊单立管排水系统宜在下列情况下采用。
排水设计流量超过普通单立管排水系统排水立管的最大排水能力/设有卫
生器具且层数在10层及10层以上的高层建筑。
同层接入排水立管的横支管数等于过大于3根的排水系统/卫生间或管道
井面积较小的建筑。
难以设置专用通气立管的高层建筑。
2、特殊单立管排水系统的立管最大排水能力应依下表确定。
特殊单立管排水系统的排水立管顶端应设伸顶通气管,其管径应与立管管径相同。
当两根或两根以上伸顶通气管汇合连接时,汇合通气管管坡应按不小于0.01的上
升坡度与伸顶通气管连接。
接入上述特制配件的横支管管径不得大于立管管径。
与下部特制配件连接的排水横干管或排出管,其管径不得小于立管管径。
采用下种特制配件的排水系统,底层排水管可不单独排出。特殊单立管排水系统排水立管管径不应小于110mm。
三、应用范围
该产品具有普通排水管的全部性能,特别对于降噪具显著效果,适用于居民文化区,更适用于特殊区域排水。